Separate treatment rooms for suspected cases of COVID-19

ELA Container coronavirus testing centre

Do you need more space to test patients for coronavirus? Then get in touch with us. On request, ELA Container can provide you with mobile container systems where you can test members of the public for coronavirus. We have already set up some coronavirus testing centres in our home region and are offering our containers to all authorities and health institutions. They can be set up anywhere both quickly and flexibly.

Benefits
Separate staff entrance
Motion detectors for contactless light activation
Turnstile
Quickly delivered and immediately ready for use
Can be set up anywhere
ELA container rooms for confidential discussions

ELA container rooms for confidential discussions

The consultation rooms in a medical practice must guarantee protection and confidentiality; the patient and physician cannot have an open, honest discussion otherwise. An inviting ambiance in the consultation rooms of mobile medical practices is therefore of great importance to ELA Container.

More details
ELA container as a coronavirus testing centre

ELA container as a coronavirus testing centre

Based on our experience so far supplying coronavirus testing centres, we suggest a container system consisting of two ELA premium containers. You will have access to all of the functional amenities you need on a total area of 36 m², from a wide range of function rooms to hygiene fittings such as toilets and sinks to full air conditioning.

More details
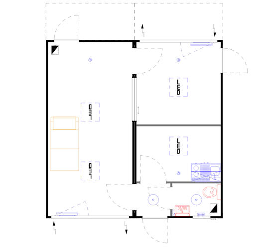
Practical testing centre floor plan

Practical testing centre floor plan

The floor plan of the container system has been designed to be both functional and practical. The container system houses three rooms in total. The examination room has an additional entrance and exit through extra doors, each one with a porch. A work room for the specialists is adjacent to the examination room and is separated from it by a door. Patients must register at an external desk before they are tested. All of the rooms can be accessed independently from one another.

🔎 View floor plans

Contact us for more information. We would be happy to advise you and provide you with a personalised quotation. 

 

Enquire now

 

Download data sheet

Hotline
Specialist consultant on site